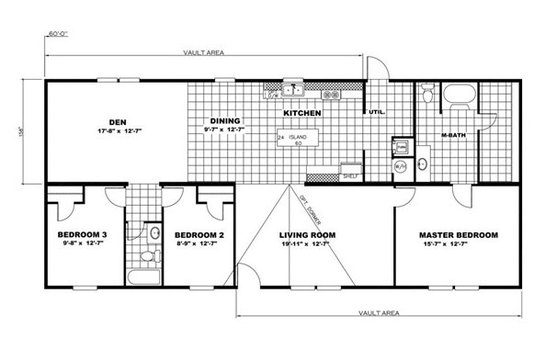
Welcome to your new Texas Single-wide by Bank Repos The “2017 TRU HOLYFIELD“. The 2017 TRU HOLYFIELD has Bedrooms, bathrooms and spans square feet, offering a comfortable and versatile living space. With a width of feet and a length of feet, this home provides a balanced layout suitable for various locations and lifestyles.
Bedrooms
Bathrooms
SQFT
Width
Length




