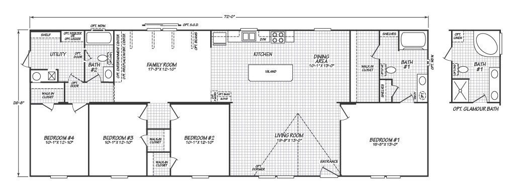
Welcome to your new Texas Double-wide by Cavco Homes The “Alamo Lite Multi-Section 28724T“. The Alamo Lite Multi-Section 28724T has 4 Bedrooms, 2 bathrooms and spans 2016 square feet, offering a comfortable and versatile living space. With a width of 26 feet and a length of 76 feet, this home provides a balanced layout suitable for various locations and lifestyles.
Bedrooms
4
Bathrooms
2
SQFT
2016
Width
26
Length
76































