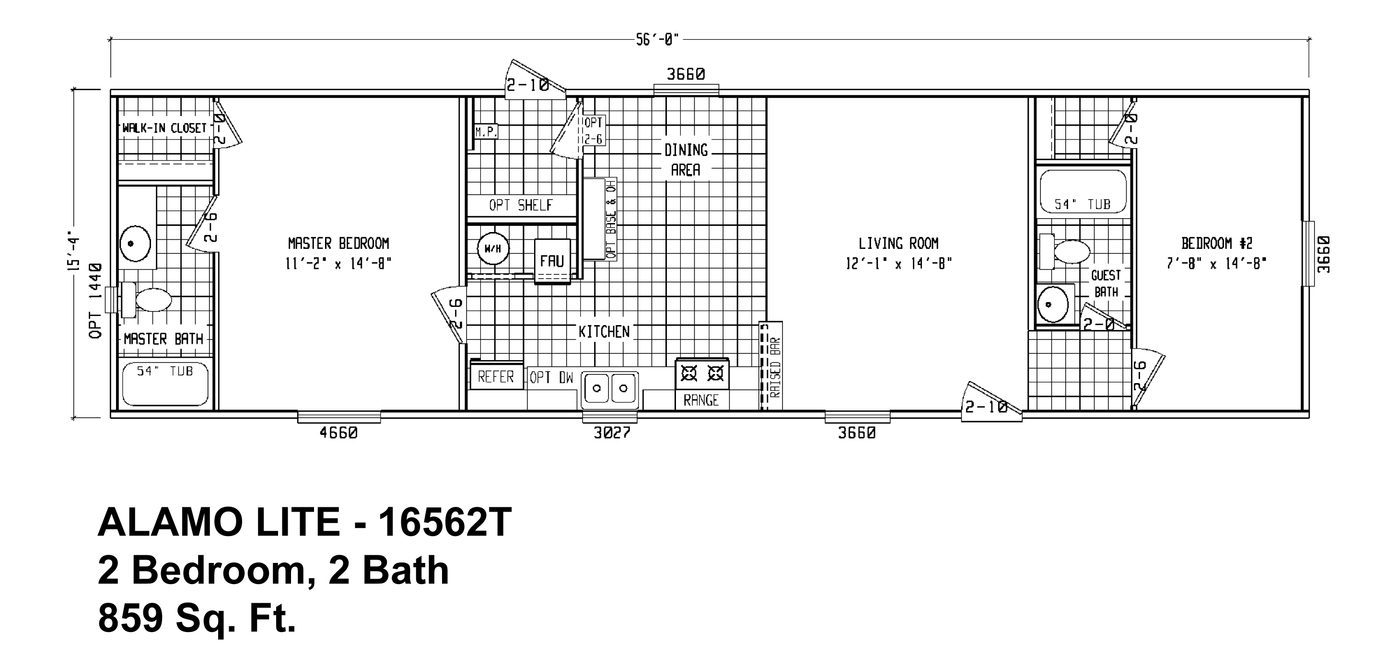
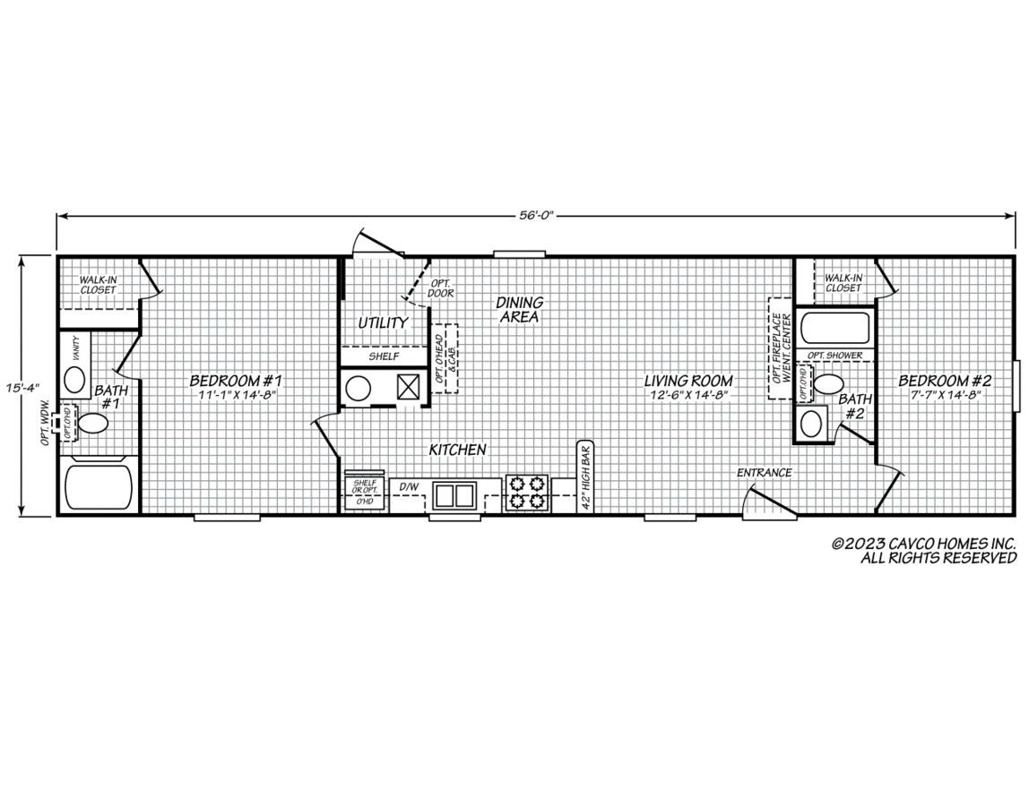
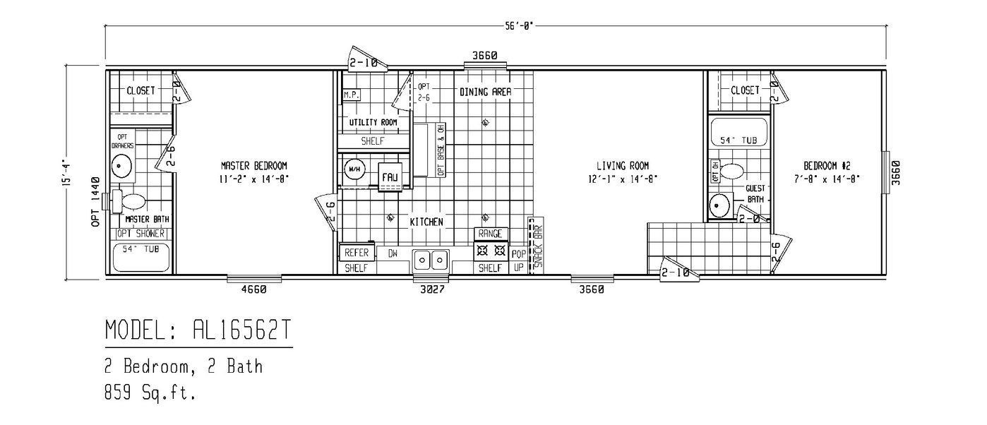
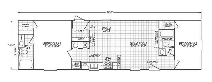
Welcome to your new Texas Single-wide by Cavco Homes The “Alamo Lite Single-Section 16562T“. The Alamo Lite Single-Section 16562T has 2 Bedrooms, 2 bathrooms and spans 859 square feet, offering a comfortable and versatile living space. With a width of 16 feet and a length of 56 feet, this home provides a balanced layout suitable for various locations and lifestyles.
Bedrooms
2
Bathrooms
2
SQFT
859
Width
16
Length
56









