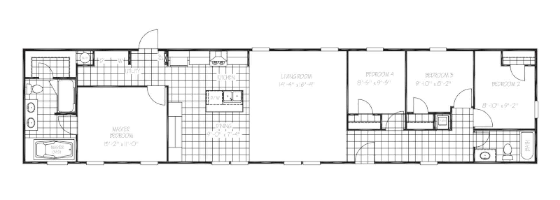
Welcome to your new Texas Single-wide by Titanium The “Cuarto“. The Cuarto has 4 Bedrooms, 2 bathrooms and spans 1292 square feet, offering a comfortable and versatile living space. With a width of 18 feet and a length of 76 feet, this home provides a balanced layout suitable for various locations and lifestyles.
Bedrooms
4
Bathrooms
2
SQFT
1292
Width
18
Length
76










