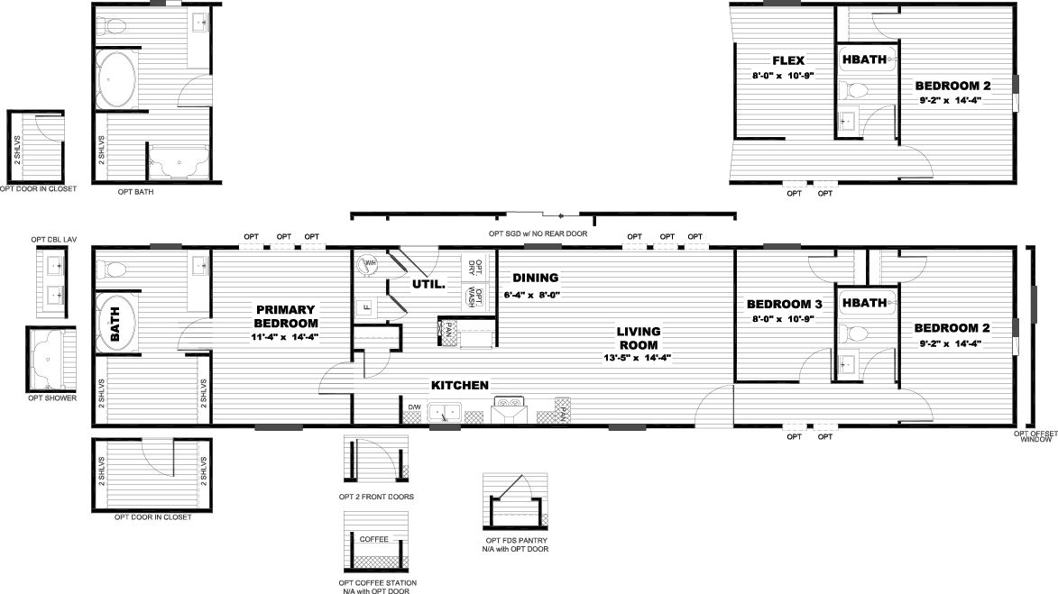
Welcome to your new Texas Single-wide by Clayton Miyo Bonham The “Desire“. The Desire has 3 Bedrooms, 2 bathrooms and spans 1140 square feet, offering a comfortable and versatile living space. With a width of 16 feet and a length of 76 feet, this home provides a balanced layout suitable for various locations and lifestyles.
Bedrooms
3
Bathrooms
2
SQFT
1140
Width
16
Length
76





























































