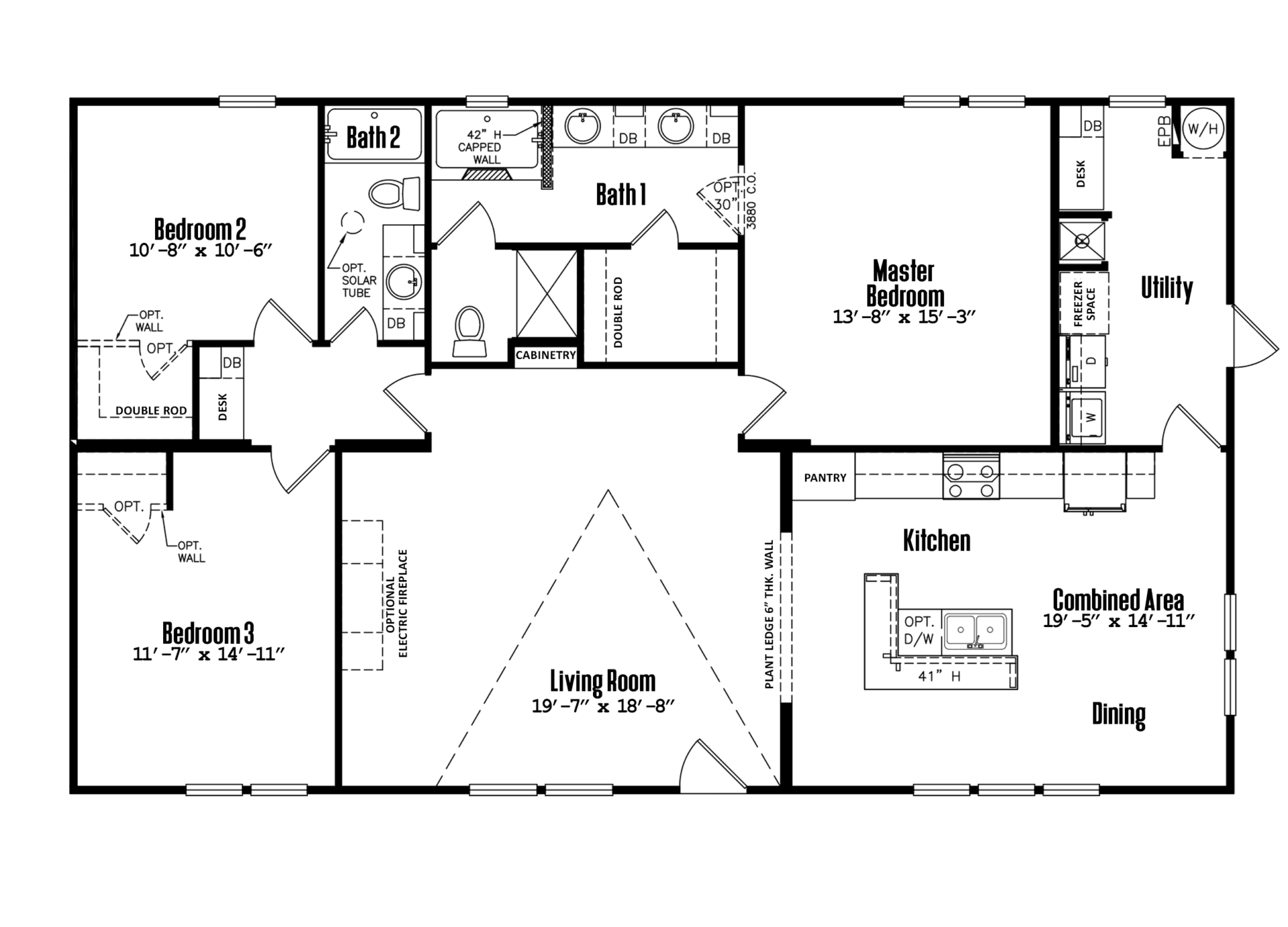
Welcome to your new Texas by Legacy The “H-32×56-32D“. The H-32×56-32D has 3 Bedrooms, 2 bathrooms and spans 1622 square feet, offering a comfortable and versatile living space. With a width of 32 feet and a length of 56 feet, this home provides a balanced layout suitable for various locations and lifestyles.
Bedrooms
3
Bathrooms
2
SQFT
1622
Width
32
Length
56




















