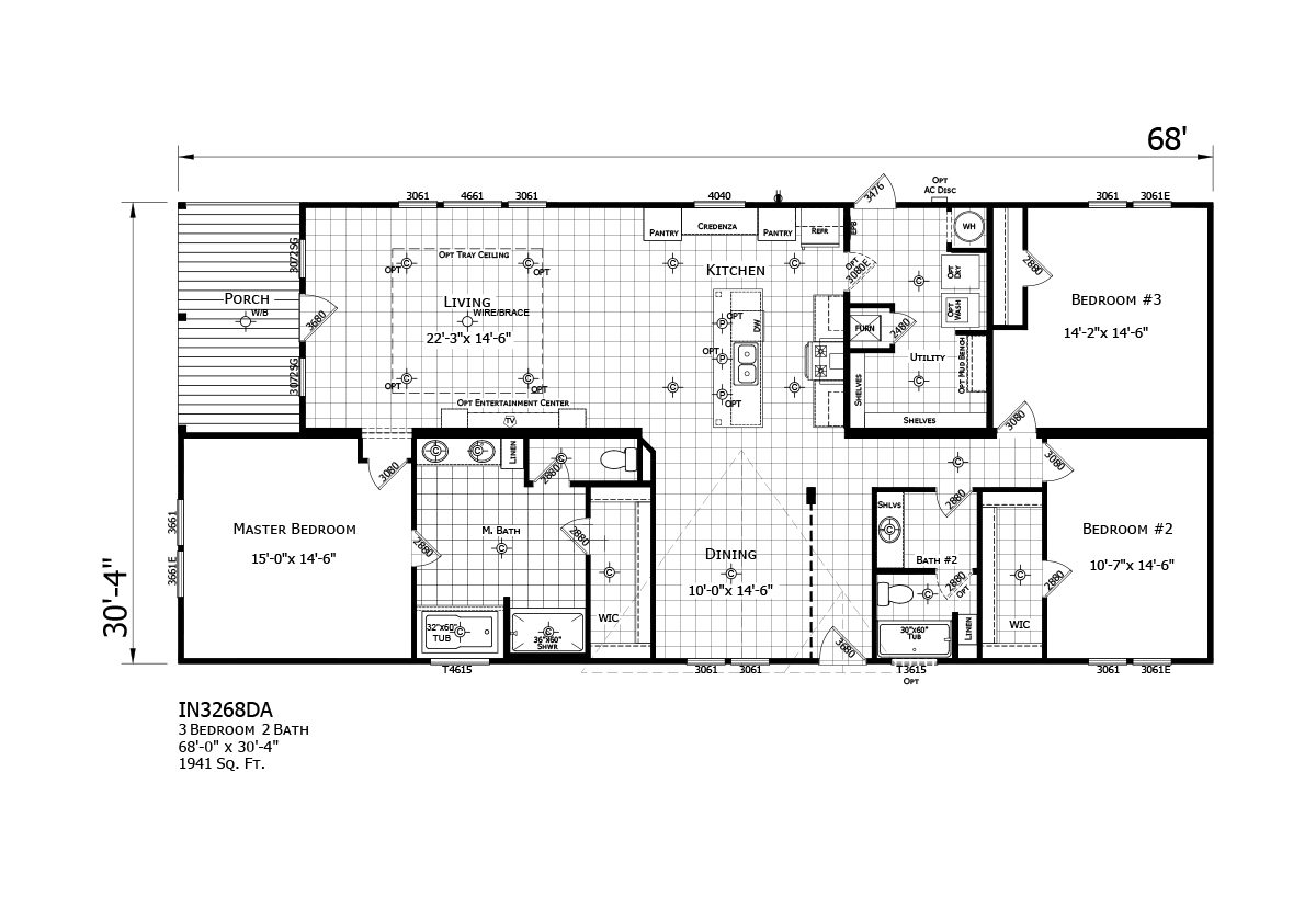
Welcome to your new Texas by Champion Innovations The “Innovation IN3268DA“. The Innovation IN3268DA has 3 Bedrooms, 2 bathrooms and spans 2304 square feet, offering a comfortable and versatile living space. With a width of 32 feet and a length of 72 feet, this home provides a balanced layout suitable for various locations and lifestyles.
Bedrooms
3
Bathrooms
2
SQFT
2304
Width
32
Length
72




















