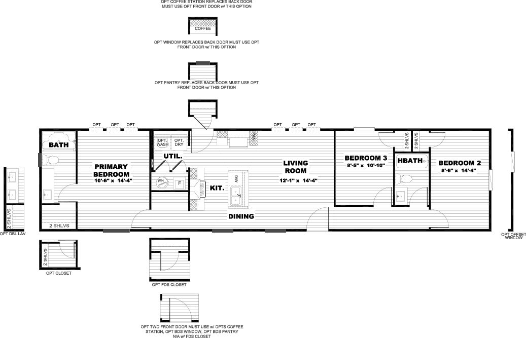
Welcome to your new Texas Single-wide by Clayton Miyo Bonham The “Intuition“. The Intuition has 3 Bedrooms, 2 bathrooms and spans 990 square feet, offering a comfortable and versatile living space. With a width of 16 feet and a length of 66 feet, this home provides a balanced layout suitable for various locations and lifestyles.
Bedrooms
3
Bathrooms
2
SQFT
990
Width
16
Length
66















