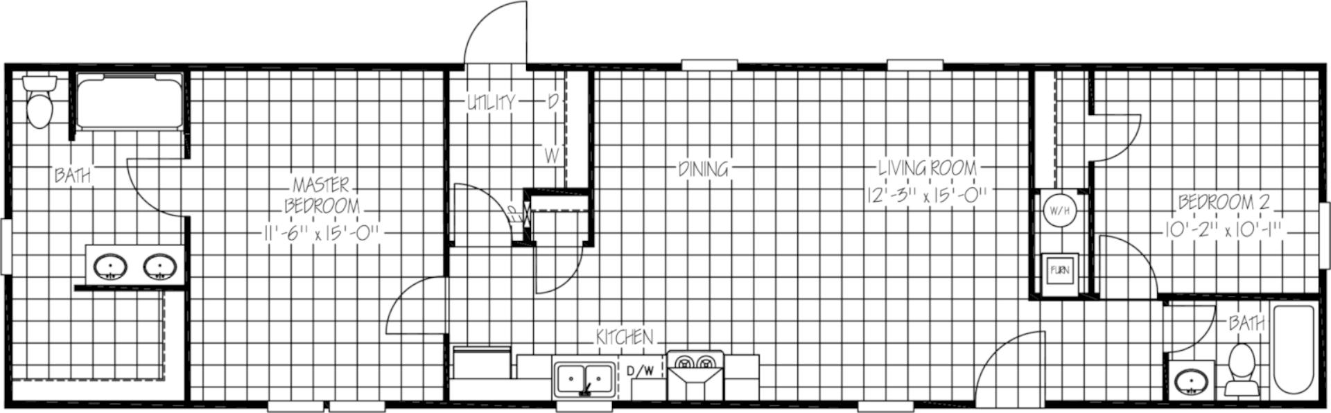
Welcome to your new Texas Single-wide by Titanium The “Molly“. The Molly has 2 Bedrooms, 2 bathrooms and spans 940 square feet, offering a comfortable and versatile living space. With a width of 16 feet and a length of 60 feet, this home provides a balanced layout suitable for various locations and lifestyles.
Bedrooms
2
Bathrooms
2
SQFT
940
Width
16
Length
60















