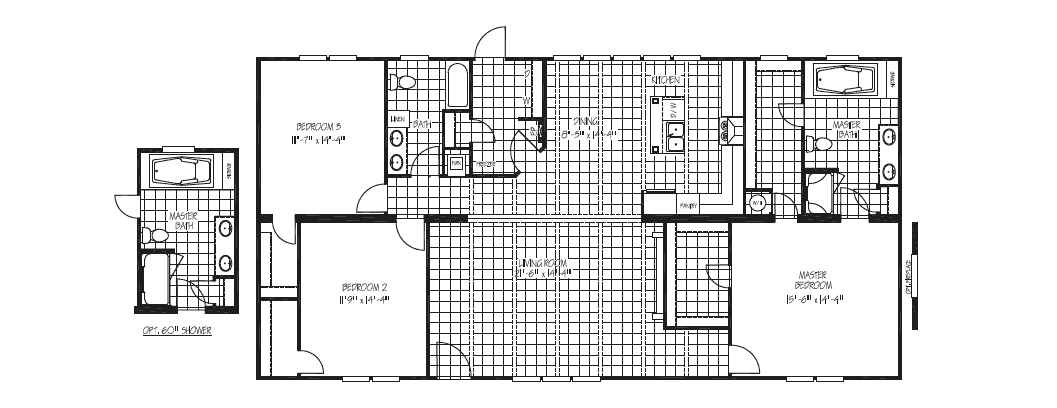
Welcome to your new Texas Double-wide by Titanium The “Palmer TTM32603A“. The Palmer TTM32603A has 3 Bedrooms, 2 bathrooms and spans 1800 square feet, offering a comfortable and versatile living space. With a width of 32 feet and a length of 60 feet, this home provides a balanced layout suitable for various locations and lifestyles.
Bedrooms
3
Bathrooms
2
SQFT
1800
Width
32
Length
60


