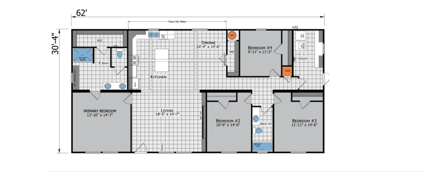
Welcome to your new Texas Double-wide by Skyline Homes The “Poydras 4 Bedroom“. The Poydras 4 Bedroom has 4 Bedrooms, 2 bathrooms and spans 1860 square feet, offering a comfortable and versatile living space. With a width of 30 feet and a length of 62 feet, this home provides a balanced layout suitable for various locations and lifestyles.
Bedrooms
4
Bathrooms
2
SQFT
1860
Width
30
Length
62

