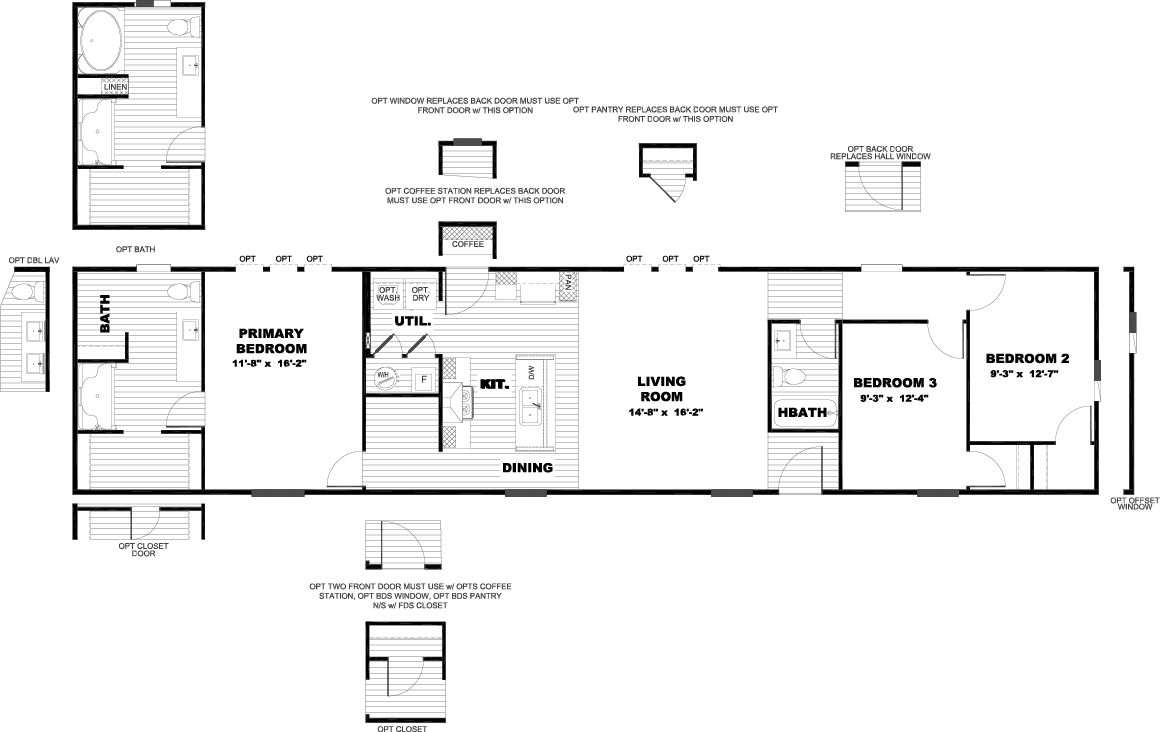
Welcome to your new Texas Single-wide by Clayton Miyo Bonham The “Sensation“. The Sensation has 3 Bedrooms, 2 bathrooms and spans 1330 square feet, offering a comfortable and versatile living space. With a width of 18 feet and a length of 76 feet, this home provides a balanced layout suitable for various locations and lifestyles.
Bedrooms
3
Bathrooms
2
SQFT
1330
Width
18
Length
76











