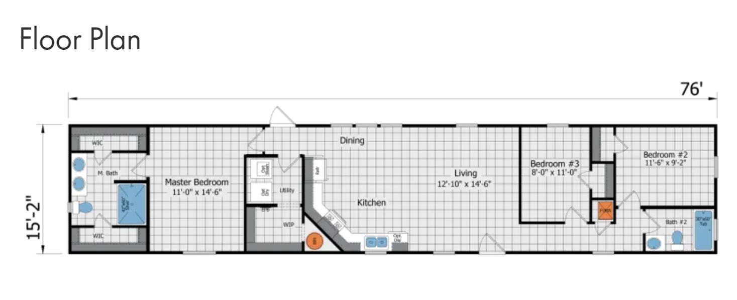
Welcome to your new Texas Single-wide by Skyline Homes The “The Tulane“. The The Tulane has 3 Bedrooms, 2 bathrooms and spans 1153 square feet, offering a comfortable and versatile living space. With a width of 16 feet and a length of 76 feet, this home provides a balanced layout suitable for various locations and lifestyles.
Bedrooms
3
Bathrooms
2
SQFT
1153
Width
16
Length
76

