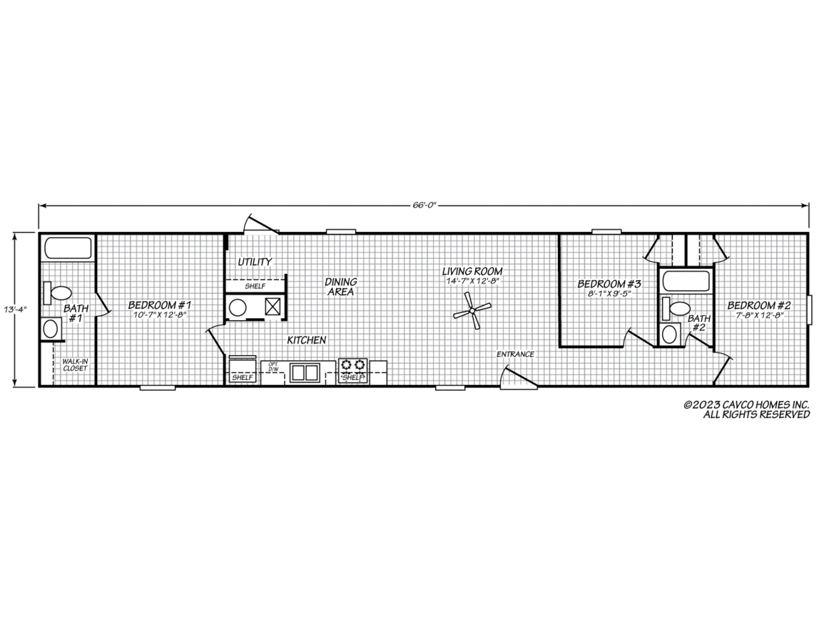
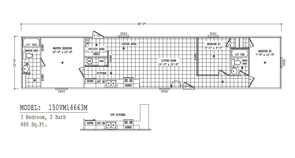
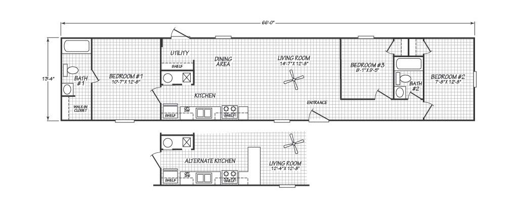
Welcome to your new Texas Single-wide by Cavco Homes The “Valu Maxx 14663M“. The Valu Maxx 14663M has 3 Bedrooms, 2 bathrooms and spans 1178 square feet, offering a comfortable and versatile living space. With a width of 16 feet and a length of 76 feet, this home provides a balanced layout suitable for various locations and lifestyles.
Bedrooms
3
Bathrooms
2
SQFT
1178
Width
16
Length
76























