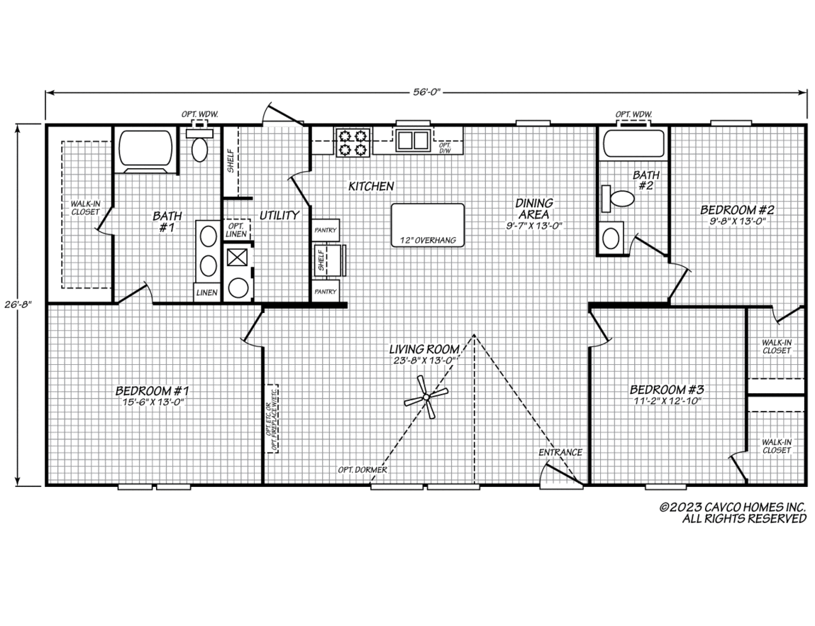
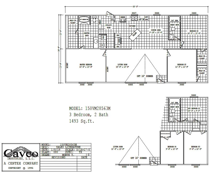
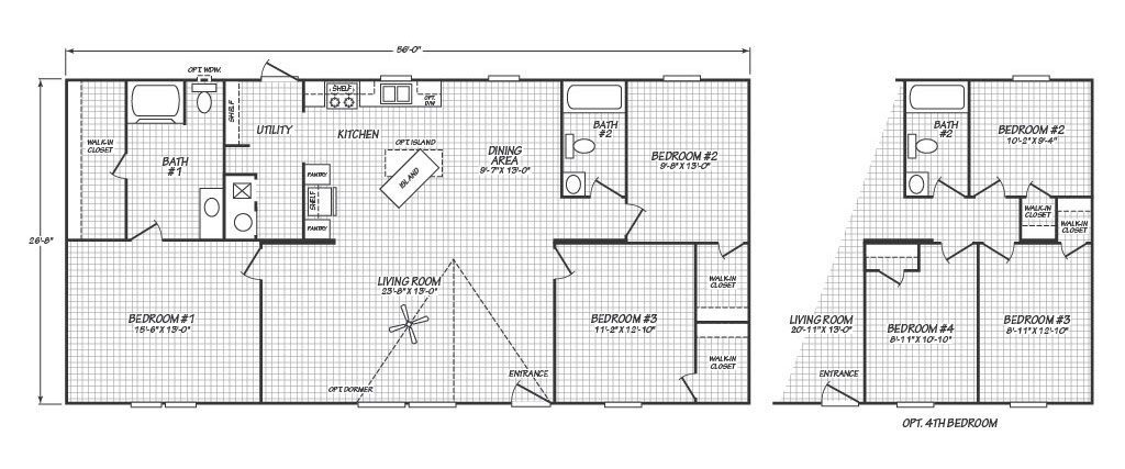
Welcome to your new Texas Double-wide by Cavco Homes The “Valu Maxx 28563M“. The Valu Maxx 28563M has 3 Bedrooms, 2 bathrooms and spans 1493 square feet, offering a comfortable and versatile living space. With a width of 26 feet and a length of 56 feet, this home provides a balanced layout suitable for various locations and lifestyles.
Bedrooms
3
Bathrooms
2
SQFT
1493
Width
26
Length
56



