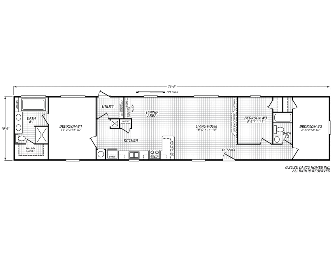
Welcome to your new Texas Single-wide by Fleetwood Mobile Homes The “ValuHomes 16763P“. The ValuHomes 16763P has 3 Bedrooms, 2 bathrooms and spans 1178 square feet, offering a comfortable and versatile living space. With a width of feet and a length of feet, this home provides a balanced layout suitable for various locations and lifestyles.
Bedrooms
3
Bathrooms
2
SQFT
1178
Width
Length




























