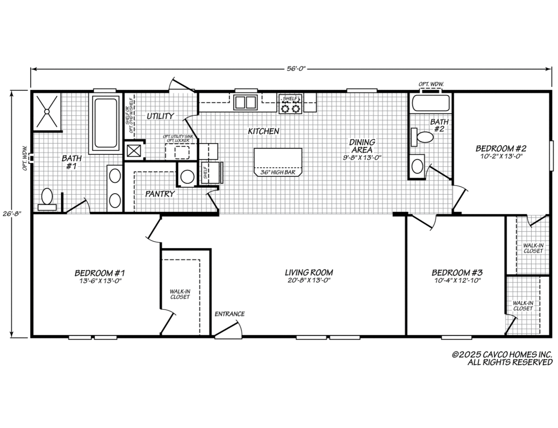
Welcome to your new Texas Double-wide by Fleetwood Mobile Homes The “ValuHomes 28563P“. The ValuHomes 28563P has 3 Bedrooms, 2 bathrooms and spans 1493 square feet, offering a comfortable and versatile living space. With a width of feet and a length of feet, this home provides a balanced layout suitable for various locations and lifestyles.
Bedrooms
3
Bathrooms
2
SQFT
1493
Width
Length


















